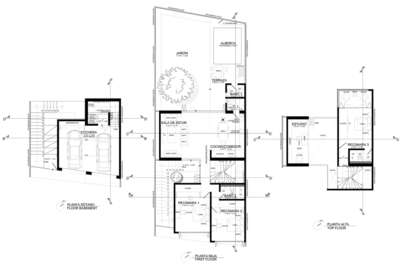
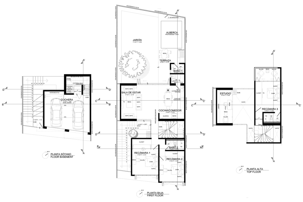
Proyecto

CGI CASA DE PIEDRA

Play Video

Click para ver más

Diseño y Modelado por GrupoBedrock
Renderizado y postproducción por Jaime Vasquez Cruz
Sketchup 2019 l V-ray Next l Photoshop

¡Gracias por su visita!

Sígueme para más contenido como este.
Tus apreciaciones son mi combustible.

Estoy abierto a colaboraciones.

Ponte en contacto conmigo:
arquitectobotello@gmail.com